確認申請と添付図書
2025-03-28 11:22
こんにちは!福本です。静岡市葵区 C様邸です。
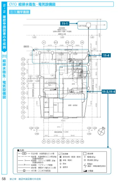
改正建築基準法に則った建築確認申請の事前審査が終了し本申請が受理されました。4月からの着工では木造2階建て住宅は新基準に則り審査され、これまで提出しなかった図書も追加されます。その中に「給排水設備図」があります。

これは、建物内に設置する衛生設備(トイレ・洗面器・キッチン・UB)の給水及び給湯や排水の配管経路を図面に記載したものです。C様邸のエリアでは静岡市で合流地域となっていますので、汚水(トイレ)と雑排水(キッチン・洗面器・UB)、雨水を同じ配管で道路の下に埋設されている下水道本管に接続して放流している地域です。

この合流地域で使用される排水桝は「トラップ付き小口径桝」という桝で、トラップが付いている箇所に雨樋の配管が接続されます。設置場所も雨樋から1m以内に取り付けることになっています。

新築の住宅打合せでは話題になることは少ないですが、こうした設備に関しても建築基準法施工令に則って施工されているか図書を添付して審査されています。
C様、建築確認申請と並行して長期優良住宅の申請も行っていますので4月の着工を楽しみにしていて下さいね!












